Elegant office break room with green floor, custom dark wood furnishings and walls made of Canaletto walnut panels with fluted glass.

Luca Faloni Kensington Offices

The new global headquarters for Luca Faloni on Kensington High Street represents a clear architectural development: the transformation of the brand’s luxury retail aesthetic into a refined and efficient workplace. Instead of applying a standard office layout, the design uses the brand’s familiar materials and finishes to create a space that is both highly functional and closely connected to Italian craftsmanship.

Entrance to an elegant office with a wooden armchair and light fabric, a wooden coffee table, a blue sofa, plants, and walls made of Canaletto walnut panels with fluted glass.
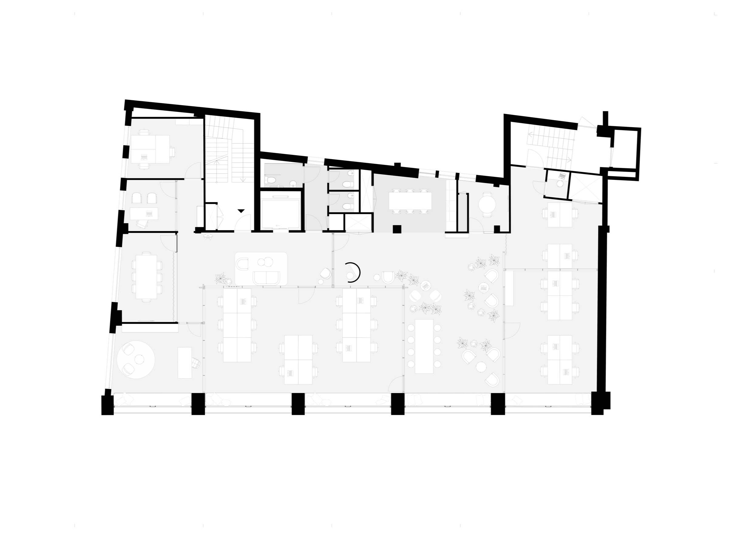
Urban planimetry studio for the renovation of Luca Faloni's office at Kensington.
Updated plan of a new corporate office at Kensington by PlaC architecture.

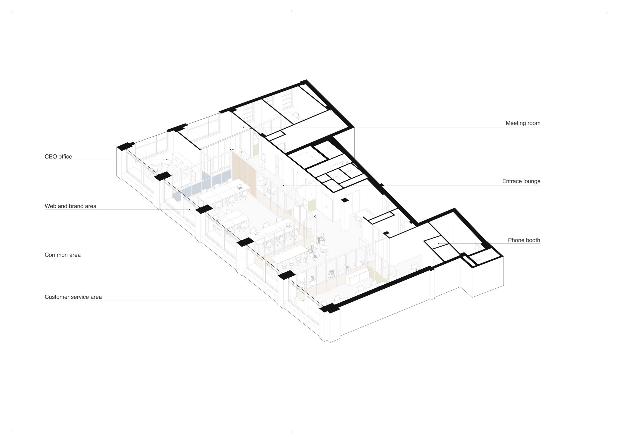
The spatial organization skillfully delineates dedicated team zones, ensuring the privacy and focus required for deep work. This subdivision is achieved through custom architectural partitions that directly reference the brand's retail stores.

Elegant office hallway with green floors, white ceiling, wood and tempered glass walls, plants, and a red armchair.
Minimal wooden and frosted glass door.
An elegant office door that combines wood and frosted glass to maximize natural light while protecting privacy.
Detailed plan of an office.

The dividing walls combine Canaletto walnut panelling with reeded glass, balancing warmth, structure, and controlled transparency. Sections clad in the company’s brushed cotton add a tactile layer, literally weaving the product’s DNA into the office's architecture.

Elegant office break room with green floor, custom dark wood furnishings and walls made of Canaletto walnut panels with fluted glass.
Partition wall between two private offices composed of semi-transparent tempered glass and light wood. In front of it are a plant, a sage green armchair and the green floor of the room.
Minimal office with large windows and a tempered glass wall.

A design intervention along the main façade connects the HQ’s interior to the vibrancy of Kensington High Street: a long, custom bench with integrated storage runs along the windows, offering employees an informal space where they can visually reconnect with the urban rhythm outside, or engage in informal conversation.

At the heart of the floorplate is a central hub designed for agility, collaboration, and pause. This open space counters traditional cubicle culture with a mix of seating, from informal lounges and high-top tables to relaxed breakout areas supporting employee well-being.

Elegant office waiting room with sage green floor and furnishings, wood and tempered glass walls, and a white ceiling.
Details of an office where a work desk can be glimpsed behind a sage green curtain.

Luca Faloni Kensington Offices

CodeLFOProgramOfficeDimension350 sqmPlaceKensington, LondonYear2025DesignPlaCDesign teamDavide Barreri, Ilaria Ariolfo, Andrea Alessio, Mariapia MamminoConsultantsOmnide / Taramelli (local architect)BuilderFiducia General Contractor (general contractor)ClientPrivateStatusRealizedPhotosLorenzo Zandri

Related Works
Studio

Via Parma 29,

10152, Turin

Contact us

info@pla-c.eu

+39 011 0373878

Privacy Preference Center